18 Foot Bushtracker Show Van 2026

Here are the details of our 18 foot couples (mid width) show van for 2026.

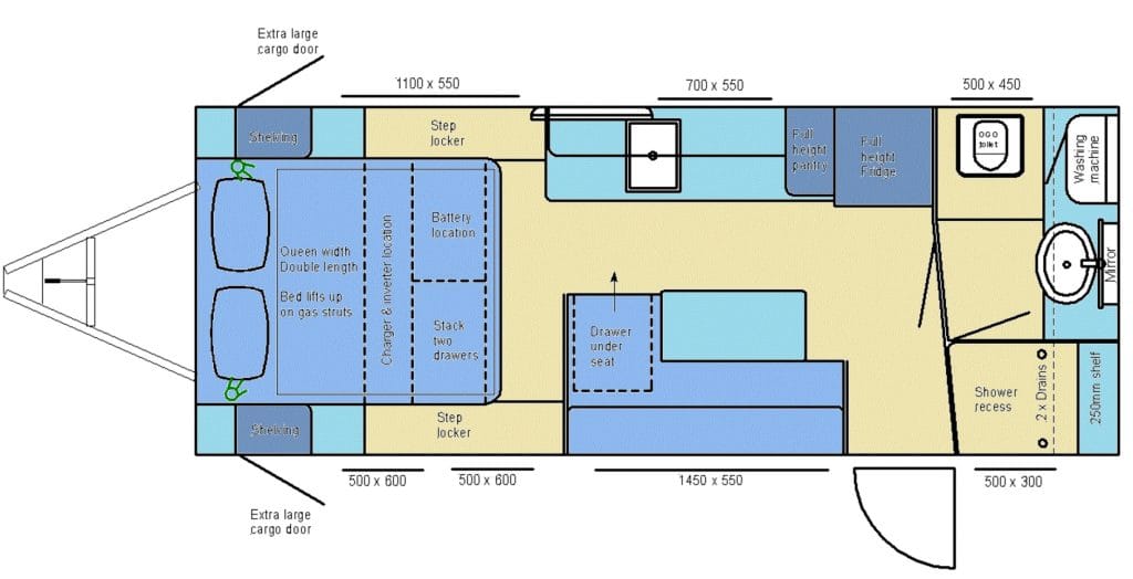
This van has an island bed layout at the front, L shape dining and kitchen in the middle with full height fridge and pantry, separate shower and toilet at the rear of the van. Complete with 628ah Premium Lithium battery system, 1440W solar panels + 900W solar awning (2340W total), 188L full height compressor fridge, combined diesel hot water system & air heater.

This van is celebrating our 30th Anniversary of Bushtracker and is finished in a bright white fibreglass external skin.

Layout Plan

18′ show van 2026 (mid) 30th Anniversary

360 degree walkthrough

With all standard inclusions and the following additional options:

12V large fan hatch in shower 
Outdoor shower
3 x 90L water tanks (1 potable, 2 non-potable)(270L capacity) with monitors
Grey water tank
Thirsty Nomad inline water purifier
188L 2 door Dometic Compressor fridge (Tropical rating)
900W Solar Electric roll out awning
Air conditioning (Dometic Freshjet Pro Rooftop A/C) 
2 x Caframo fans installed
Diesel heater with 2 outlets
2.5kg wall mounted washing machine
628a/h Bushtracker exclusive Premium Lithium battery system with A/C isolator
8 x High grade flexible solar panels + 900W solar awning (2340W total) 
100A MPPT solar regulator Anderson plug connected to 40A+ DC to DC charger
Enerdrive 3000W inverter / 100A battery charger
Panasonic convection microwave / oven / grill
HardKorr LED lightbar on front of van
75mm higher walls
Set Max Trax on rear of van
Fiberglass skin
LED courtesy lights

(list continued, please request full pricing guide)

Specifications

Length (caravan) 18 feet (5.49 M)
Length (overall) 25 feet (7.62 M)
Width 7’6″ feet (2.30 M)
Height 11 feet (3.35 M)
Tare weight 2,811kg
Payload 1,039kg

Price

Video walkthrough

Video coming soon

Internal Photo Gallery

External Photo Gallery

Want more information on this van?

Please fill out your details below and we will get back to you with the full PDF spec sheet and break down of pricing

This field is for validation purposes and should be left unchanged.